4051 Sawtelle
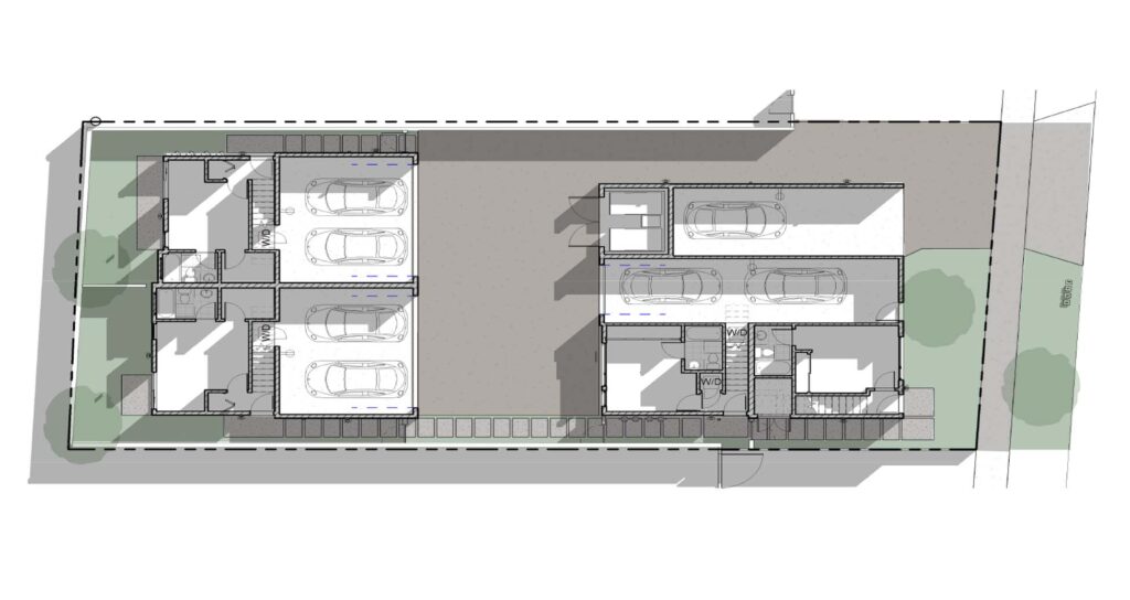
This project creates a two contemporary duplexes in a walkable neighborhood that is adjacent to commercial streets. Both building embrace principles of modern living providing views and access to the outside while maintaining privacy.
To the achieve a balance between the privacy and maximizing views and natural light, the living and dining spaces are on the second level. On the front unit, a roof deck allows 360 degree views of the neighborhood. The rear units features private back yards and second floor balconies facing west.

The overall form and style of the project takes its inspiration from contemporary residential design with deep overhangs and wood cladding framed by architectural projections.
A blend of unique, visually engaging materials and shapes enhances the overall aesthetic of the development, lending a dynamic presence to the property. Carefully crafted detailing brings a modern edge while harmonizing with the surrounding neighborhood.
